Duplex à Contern

1580000 €
Disponible

Description

*** DUPLEX AVEC TERRASSE, JARDIN ET ACCÈS DIRECT PAR ASCENSEUR ***

Livraison prévisionnelle : fin 2026

DALPA vous propose à la vente ce magnifique duplex 4 chambres, avec accès direct par ascenseur, situé aux 1er et 2e étages d’une résidence bi-familiale en cours de construction, offrant une surface nette habitable de 175m², complété par une terrasse de 36m² et un jardin privatif.

Implanté dans une rue sans issue, le projet bénéficie d’un environnement calme et verdoyant avec vue dégagée à l’arrière, offrant un cadre de vie particulièrement agréable et paisible. La résidence propose des prestations modernes ainsi que des espaces extérieurs généreux, idéale pour les personnes recherchant qualité de vie et proximité du centre-ville.

L’objet se situe au : 1A, rue Bourgheid, L-5326 Contern

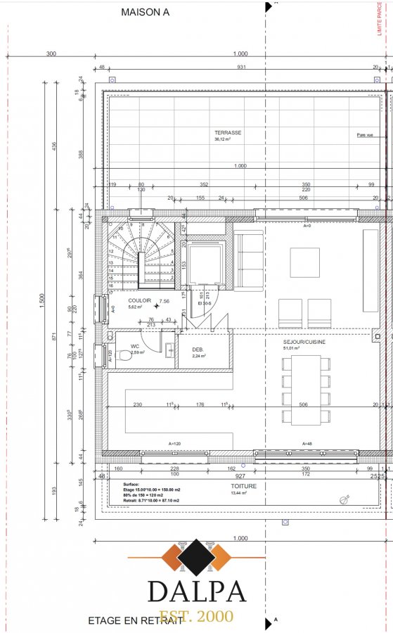
Le Duplex s’étendant du 1er au 2e étage est accessible directement par l’ascenseur et se compose comme suit :

Au 1er étage :
– 1 hall d’entrée / couloir (10,21m²)
– 1 chambre parentale (17,64m²) avec salle de douche (8,91m²) et dressing (4,97m²)
– 3 chambres à coucher (21,57m², 17,81m², 17,20m²)
– 1 salle de bain (9,29m²)
– 1 WC séparé (2,10m²)
– 1 débarras (3,60m²)

Au 2e étage :
– 1 hall d’entrée / couloir (5,62m²)
– 1 vaste séjour avec cuisine ouverte (51,01m²) donnant accès direct à la terrasse (36,12m²)
– 1 WC séparé (2,59m²)
– 1 débarras (2,24m²)

Deux emplacements de parking dans le garage privatif, une cave (5,56m²), un emplacement privatif dans la buanderie commune ainsi que la moitié de la maisonnette de jardin complètent ce magnifique projet contemporain.

Le prix annoncé s’entend TVA 3 % incluse, sous réserve de l’acceptation du taux super-réduit par l’Administration de l’Enregistrement et des Domaines

Nous sommes à votre entière disposition pour tous renseignements et documentation complémentaires. Veuillez nous contacter sous le numéro +352 621 469 311 ou par mail sur info@dalpa.lu.

Si vous souhaitez vendre ou louer votre bien, nous mettons à votre disposition notre professionnalisme, savoir-faire et qualité de service. Nous vous proposons des estimations rapides, gratuites et réalistes.

(image non contractuelle)

Caractéristiques

Intérieur

Cuisine équipée
Non
Cuisine séparée
Non
Cuisine ouverte
Oui
Meublé
Non
Buanderie
Oui
Ascenseur
Oui
Cave
Oui
Grenier
Non
Cheminée
Non
Parquet
Non
Sauna
Non

Sanitaires

Salles de bains
1
Douches
1
Baignoires
0
Toilettes
2

Extérieur

Jardin
Oui (150 m²)
Terrasse
Oui (36.12 m²)
Balcon
Non
Piscine
Non

Autres

Année de construction
-
Année de rénovation
-
Rénové
Non
Accès PMR
Non
Animaux acceptés
Non
Location courte durée
Non
Internet
optical_fiber
Parking intérieur
0
Parking extérieur
0
Garages
2
Sous-sol
1

Chauffage / climatisation

Classe énergie
A
Classe émissions
NC
Chauffage gaz
Non
Chauffage mazout
Non
Chauffage électrique
Non
Pompe à chaleur
Oui
Panneaux solaires
Non
Géothermie
Non
Chauffage au sol
Oui

Localisation

Contactez-nous

Contactez-nous pour vendre votre bien

Prêt à vendre ? Contactez DALPA pour une estimation gratuite et découvrez comment nous pouvons vous aider à vendre rapidement et au meilleur prix.

Réalisez votre transaction en toute confiance!


DALPA s’engage à vous fournir toutes les informations nécessaires, de manière totale et transparente, pour vous accompagner dans votre transaction immobilière.